Στούντιο στον Κορυδαλλό

Στούντιο στον Κορυδαλλό


Περιγραφή Έργου

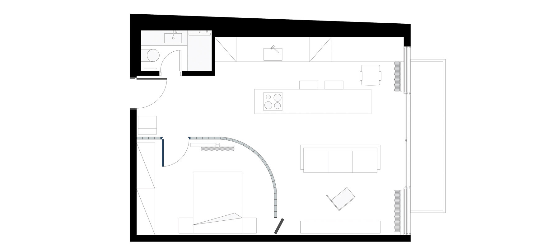
Ο χώρος βρίσκεται σε πολυκατοικία κατασκευασμένη τη δεκαετία του ‘70 στην περιοχή του Κορυδαλλού. Η ελεύθερη κάτοψη, περίπου 60 τ.μ., με την απουσία υποστυλωμάτων, την ενιαία τζαμαρία προς τον δρόμο και τις δύο ΄τυφλές΄ όψεις αποτέλεσε για πολλά χρόνια αποκλειστικό χώρο επαγγελματικής δραστηριότητας. Μία τυπική προσέγγιση κάτοψης. Σήμερα, καλούμαστε να σχεδιάσουμε τον χώρο ώστε να εξυπηρετεί τα προγράμματα της διαμονής αλλά και του χώρου εργασίας ενός σύγχρονου και ταυτόχρονα αστικού τρόπου κατοίκησης. Να ξανασκεφτούμε τον χώρο. Tην ίδια την κατοίκηση. Μία επεξεργασία των επιθυμιών.

 

«…Η αρχιτεκτονική είναι έρευνα της ανθρώπινης ύπαρξης»1 L. Kahn

 

Η είσοδος τέμνει νοητά τον χώρο σε δύο ζώνες. Στη μία ζώνη συναντάμε το χώρο του λουτρού και της κουζίνας σε συνέχεια με το γραφείο σχεδιασμένα σε μία ενιαία κατασκευή. Στον άξονα της εισόδου αλλά και στον πυρήνα του χώρου, τοποθετείται το στοιχείο της νησίδας, τόπος συνάντησης, που αποτελεί το χώρο παρασκευής και κατανάλωσης της τροφής. Εστία. Στην δεύτερη ζώνη υπάρχει ο χώρος του καθιστικού και του υπνοδωματίου. Χαράχτηκε μια καμπύλη με τρόπο που η κίνηση στο χώρο να γίνεται ως χορευτική. Η κίνηση γεννάει το χώρο και ο χώρος γεννιέται από την κίνηση. Η επιλογή του υλικού, επιτρέπει στο φως να διεισδύει στο υπνοδωμάτιο και ταυτόχρονα να ανατρέπει το σκληρό όριο ενός τοίχου που διαχωρίζει. Το υαλότουβλο. Η ύπαρξη ή μη του ανθρώπου στο χώρο υπαινίσσεται. Παράλληλα ο κάτοικος μέσω ενός μεταλλικού πετάσματος που τοποθετείται στο όριο του τοίχου με την κατασκευή των υαλότουβλων έχει την δυνατότητα ελέγχου της εισόδου ή μη του φυσικού φωτισμού και αερισμού του χώρου. Επιτρέπουμε στους κατοίκους να εκτίθενται υπό όρους.

 

«… η ομορφιά δεν βρίσκεται μες στο ίδιο το πράγμα, αλλά γεννιέται απ΄ το φως και το σκοτάδι, μες στις αποχρώσεις της σκιάς των πραγμάτων στη σχέση τους και το ένα με το άλλο.»2 J. Tanizaki

 

Η αφαίρεση του υλικού της επικάλυψής από την οροφή ανέδειξε το υλικό κατασκευής της. Το μπετό. Παράλληλα, ο φωτισμός του χώρου γίνεται με ένα εμφανές σύστημα φωτισμού σε κάναβο που εφαρμόστηκε με μεταλλικούς σωλήνες και φωτιστικά σημειακής εστίασης. Μεταλλικά στοιχεία εξοπλισμού, όπως έπιπλα, στηρίξεις επίπλων αλλά και αναρτήσεις για τον ρουχισμό. Για την πόρτα που οδηγεί από το καθημερινό στο δωμάτιο επιλέχθηκε το μπλε χρώμα. Δεν αποτελεί μία πόρτα μετάβασης αλλά ένα στοιχείο της ίδιας της επιφάνειας. Υλικά και επεξεργασίες που ο συνδυασμός τους αλλά και σε συνάρτηση με το φυσικό και τεχνητό φως επιχειρούν την δημιουργία μιας αφήγησης.

 

«…Η αφήγηση προχωράει μέσα από το υλικό καθώς το αναγνωρίζουμε στο αρχιτεκτονικό έργο»3 Σ. Αντωνακάκη

 

  • Νίκος Κτενάς, «Τοπογραφίες Διαβίωσης _ πιστεύω, ερευνώ, θεωρώ»: Διάλεξη «Έξι διαλέξεις για την κατοίκηση», Αθήνα: Σχολή Αρχιτεκτόνων ΕΜΠ, 2014, σ.243.
  • Junichiro Tanizaki, «Το εγκώμιο της σκιάς» ελλ. Μτφρ. Παναγιώτης Ευαγγελίδης, Αθήνα: Άγρα, 2011, σ.100
  • Σουζάνα Αντωνακάκη, «Το έργο του Κυριάκου Κρόκου στο σταυροδρόμι των καιρών. Υλικότητα αντί εξαϋλωσης»: Διάλεξη «Αρχιτεκτονική Ποιητική. Κείμενα 1959-2019», Αθήνα: Πανεπιστημιακές Εκδόσεις Κρήτης, 2023, σ.453.

Περισσότερες Πληροφορίες

  • Έτος Μελέτης: 2022-2023
  • Τοποθεσία: Κορυδαλλός
  • Επιφάνεια: 60 τ.μ.
  • Ομάδα Μελέτης | Επίβλεψη: aphe architecture studio
  • Φωτογράφιση: Δημήτρης Κλεάνθης
  • Σχέδια: Πατήστε εδώ